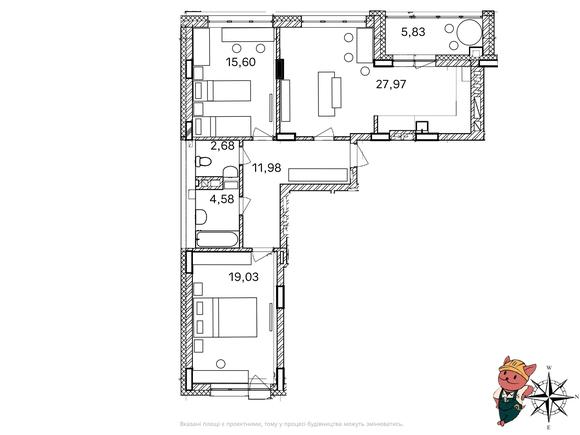
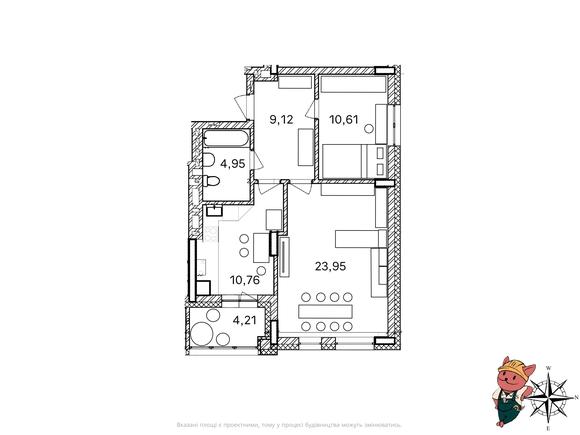
Квартира №2, Quoroom Perfect II

  • Адреса Перфецького 6а
  • Поверх 3
  • Секція 1
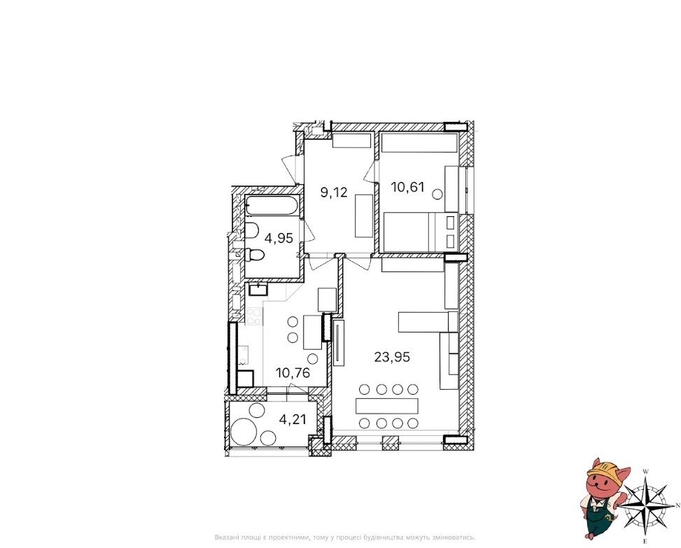
  • Кількість кімнат 2
  • Кухня 10,76
  • Житлова площа 34,56
  • Загальна площа 63,60
  • Планування
  • Планування на поверсі
  • Генплан

2-кімнатна квартира 63,60 м² на 3 поверсі клубного будинку.

Простора кухня 10,76 м² з виходом на балкон 4,21 м². Велика вітальня 23,95 м² легко зонуються під обідню та відпочинкову частину. Окрема спальня 10,61 м². Зручний передпокій 9,12 м² та санвузол 4,95 м². Раціональне, логічне планування без зайвих метрів.

Планування дозволяє комфортно проживати сім’ї або розглядати квартиру як ліквідну інвестицію.

Переваги:

• клубний будинок з обмеженою кількістю квартир

• комфорт-клас

• окрема кухня + балкон

• простора вітальня 24 м²

• правильне зонування простору

• зручна геометрія кімнат для меблювання