Квартира №15, Quoroom Perfect II

  • Адреса Перфецького 6а
  • Поверх 5
  • Секція 1
  • Черга будівництва 2
  • Кількість кімнат 1
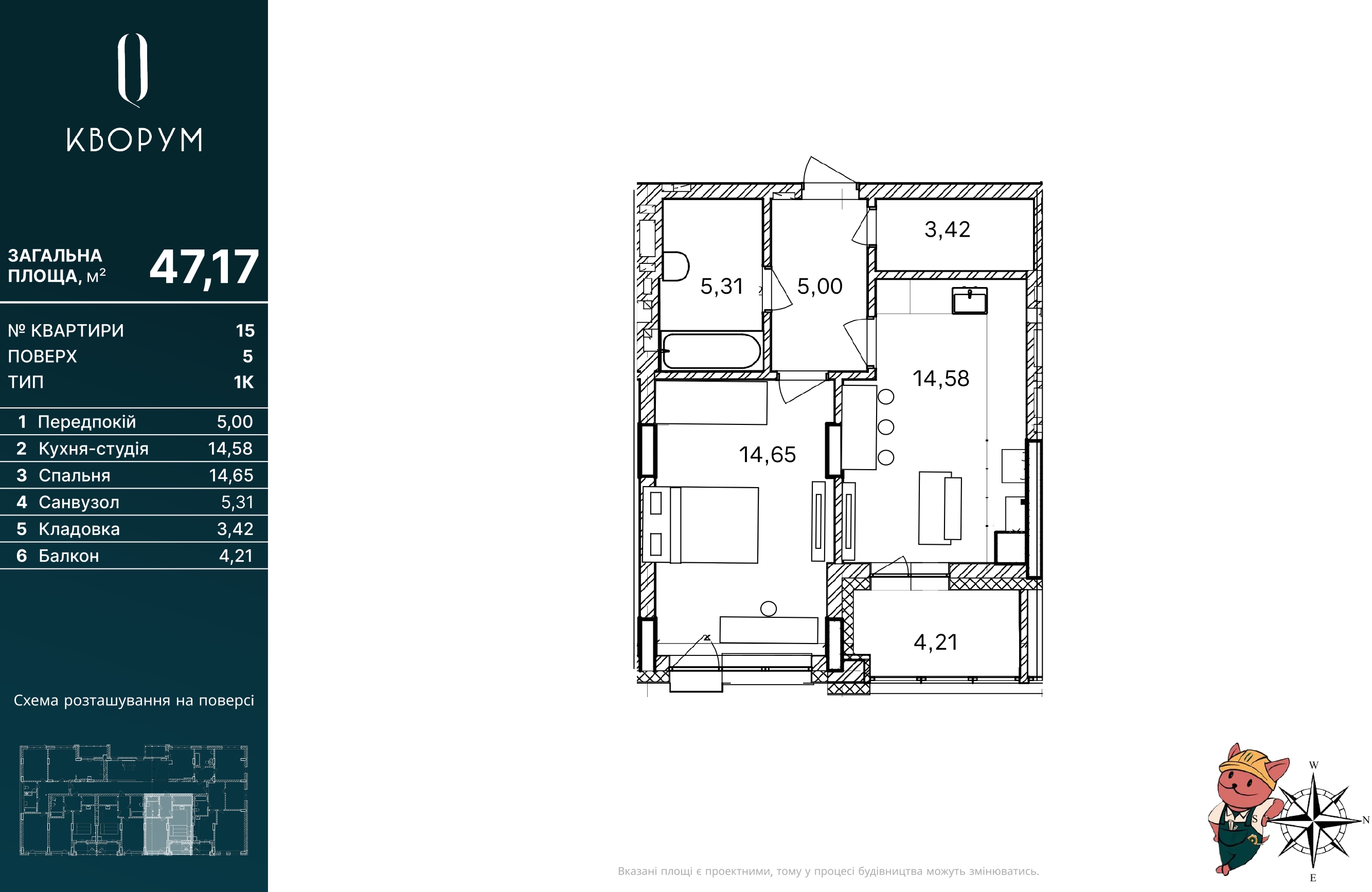
  • Кухня 14,58
  • Житлова площа 14,65
  • Загальна площа 47,17
  • Планування
  • Планування на поверсі
  • Генплан

1-кімнатна квартира 47,17 м² на 5 поверсі в клубному будинку з акцентом на функціональність та порядок.

Світла кухня-студія (14,58 м²) з виходом на затишний балкон (4,21 м²) створює ідеальний простір для відпочинку та прийому гостей. Окрема спальня (14,65 м²) правильної форми дозволяє зручно розмістити велике ліжко та зону зберігання. Особливістю планування є наявність окремої кладовки (3,42 м²), що допомагає підтримувати ідеальний порядок у домі, а також просторого передпокою (5,00 м²) та великого санвузла (5,31 м²).

Ця квартира — чудовий вибір для тих, хто цінує продумані рішення та комфортний простір на високому поверсі.

Переваги:
Клубний будинок — затишна атмосфера та обмежена кількість мешканців.

Власна кладовка — додаткове місце для гардероба або господарських потреб.

Кухня-студія + балкон — сучасний формат відкритого простору для життя.

Комфорт-клас — висока якість планування та продумана ергономіка.

Раціональна площа — кожен квадратний метр використаний з максимальною користю.