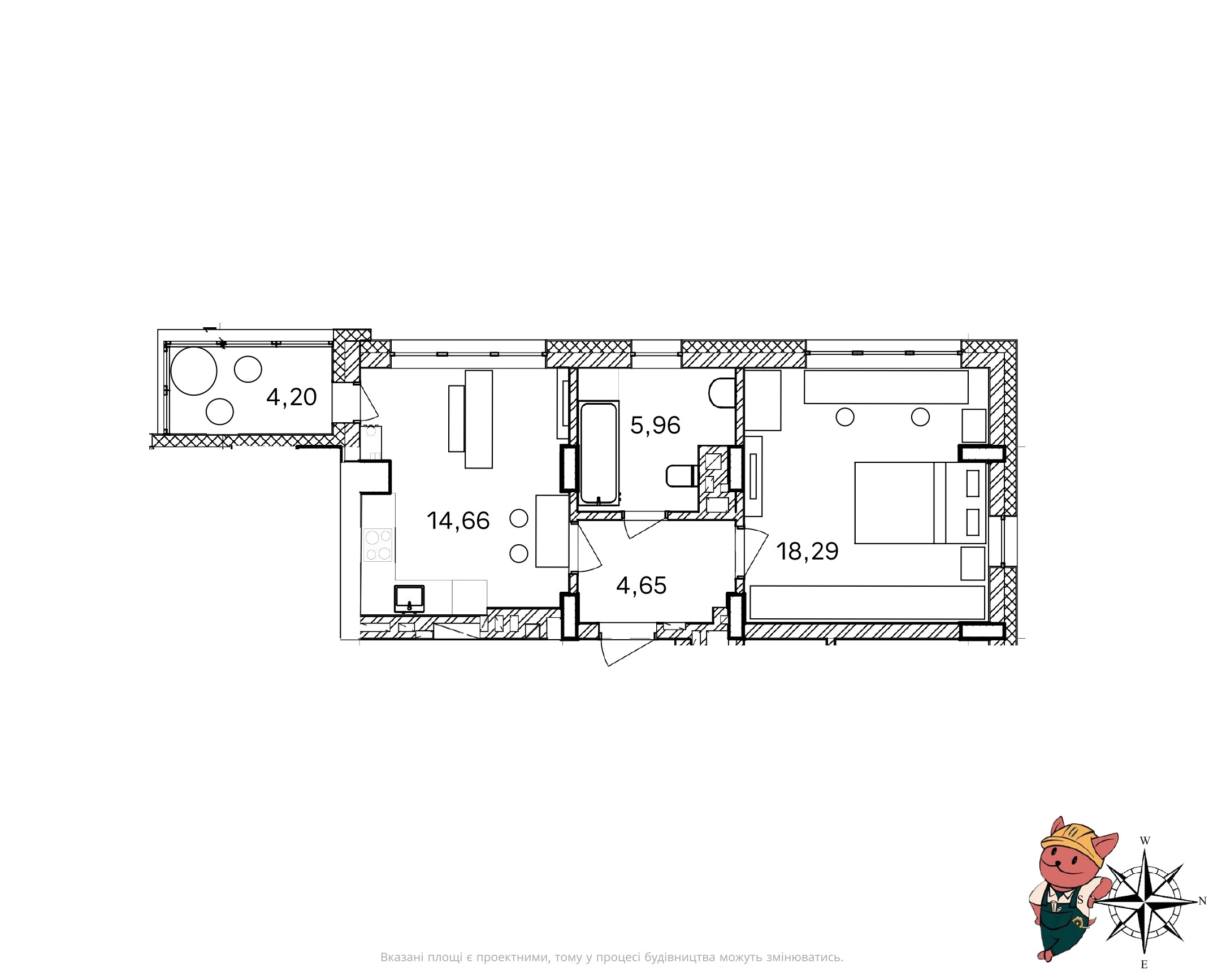
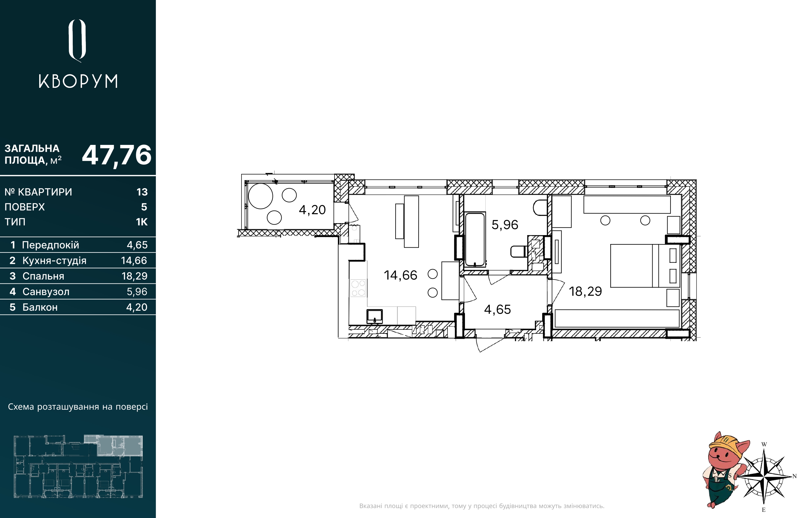
Квартира №13, Quoroom Perfect II

  • Адреса Перфецького 6а
  • Поверх 5
  • Секція 1
  • Черга будівництва 2
  • Кількість кімнат 1
  • Кухня 14,66
  • Житлова площа 18,29
  • Загальна площа 47,76
  • Планування
  • Планування на поверсі
  • Генплан

1-кімнатна квартира 47,76 м² на 5 поверсі в клубному будинку з продуманою ергономікою та просторими кімнатами.

Завдяки грамотному зонуванню, кухня-студія (14,66 м²) з виходом на балкон (4,20 м²) стає ідеальним місцем для відпочинку. Особливістю планування є велика окрема спальня (18,29 м²), що дає змогу облаштувати повноцінну зону відпочинку та містку гардеробну. Комфорт доповнюють функціональний передпокій (4,65 м²) та великий санвузол (5,96 м²).

Це раціональний вибір для тих, хто шукає затишок у поєднанні з перевагами сучасного клубного будинку.

Переваги:
Клубний будинок — обмежена кількість сусідів та висока приватність.

Велика спальня — понад 18 м² для вашого максимального комфорту.

Просторий санвузол — майже 6 м², що дозволяє зручно розмістити всю необхідну сантехніку.

Кухня-студія + балкон — сучасний формат з виходом на відкритий простір.

Комфорт-клас — якісні матеріали та продумане планування кожної зони.